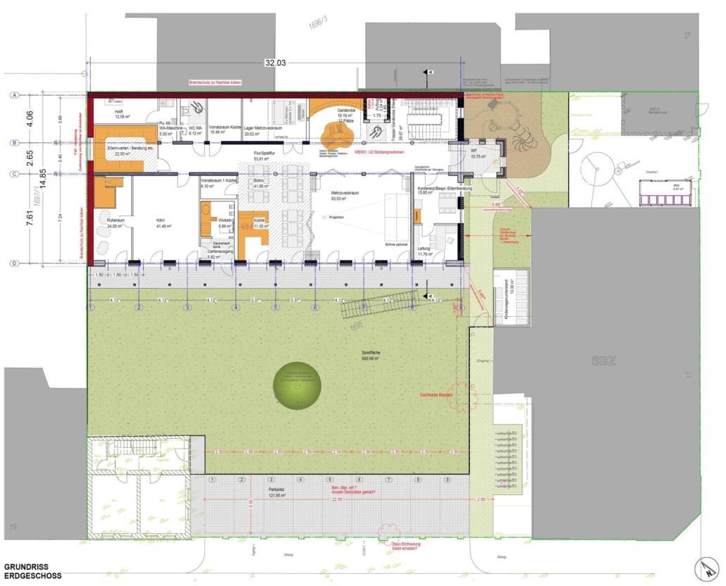
Construction of a Five-Group Inclusive Daycare Center
A daycare center is planned to be built on the site of the former police station in Hof. The facility will accommodate five groups, two of which will be inclusive.
The design features a two-story new building and a three-story existing brick building, which will be incorporated into the overall usage concept.
All areas of the two-story facility will be accessible and barrier-free. The facade will consist of white plaster surfaces and warm wooden paneling.
Planning Start – 2024






