New construction production hall – 1st place in an invited architectural competition
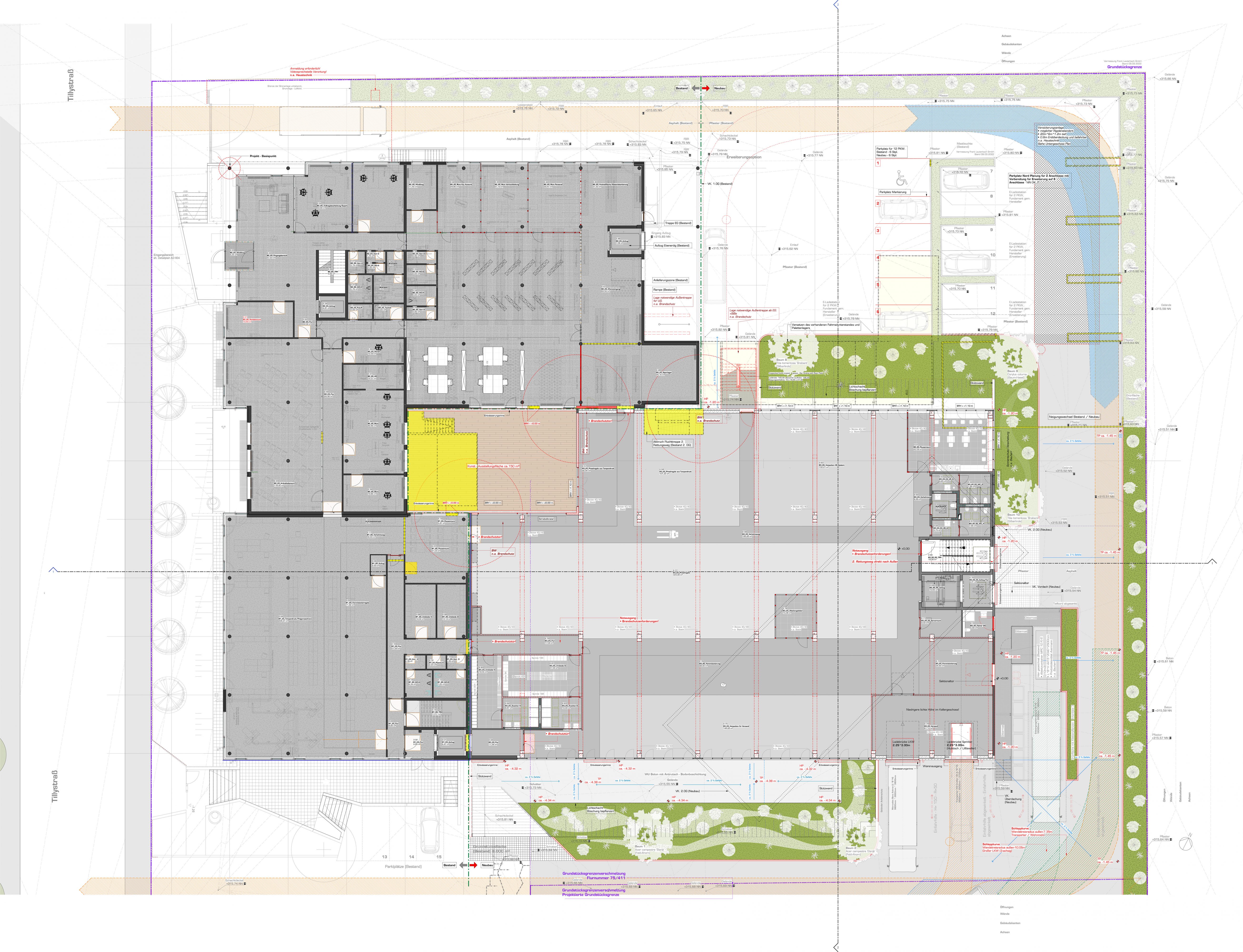
A multi-storey extension was built on the site of the daVinci paintbrush factory, incorporating storage and production areas as well as a new order-picking area with goods issue, offices and social rooms.
The new building was constructed with a reinforced concrete skeleton structure and clad with an isopane façade. It was designed in accordance with the KfW40 standard, and a photovoltaic system on the roof ensures the building’s own power supply and the operation of the air-source heat pumps.
Initial planning – 2021
Start of construction – 2022
Completion – 2025





































